Westkill Studio W.I.P.

Westkill Studio W.I.P.
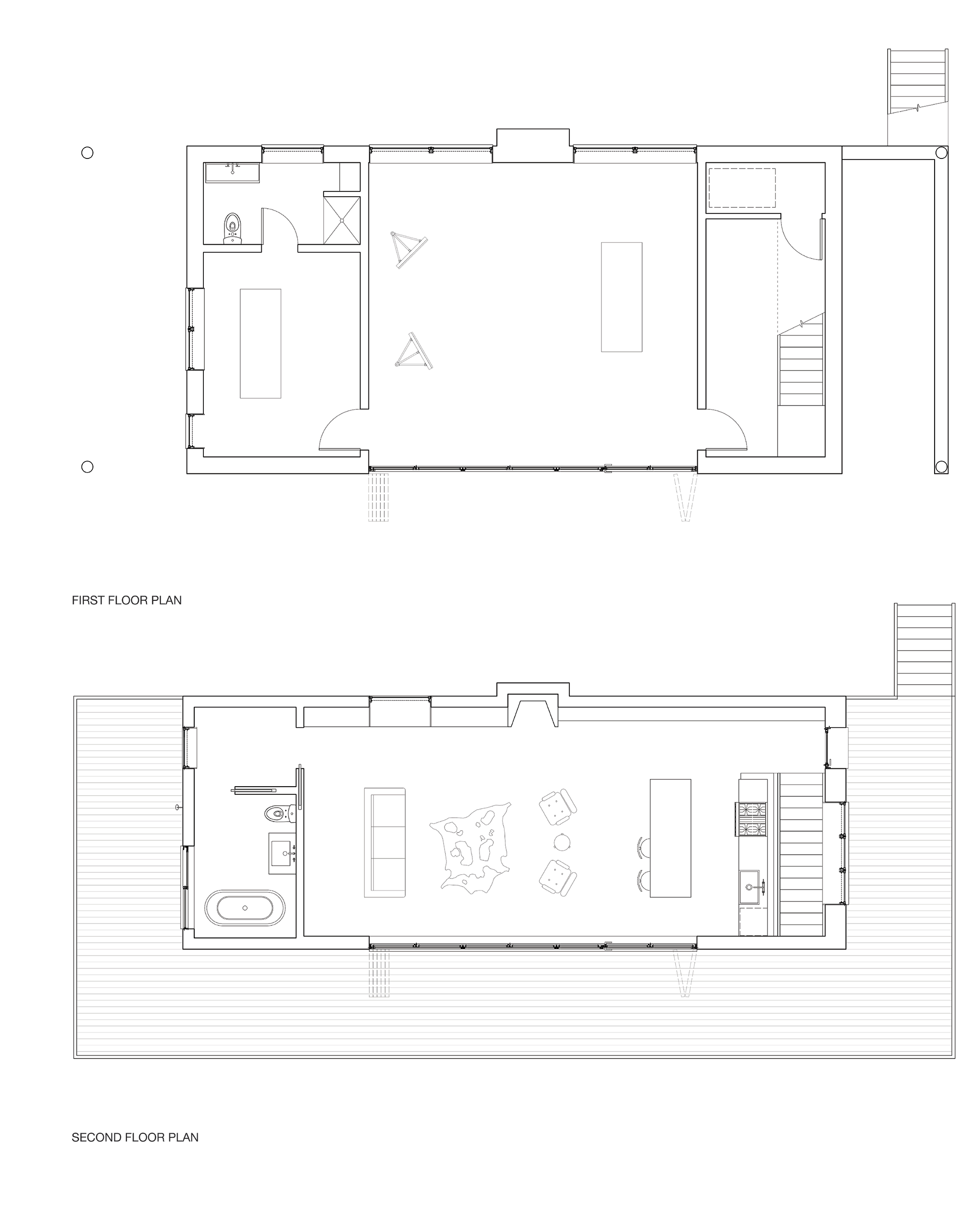
The studio / guesthouse was designed to complement the existing house (see Westkill Restoration). The high-ceiling, ground-level painting studio space features a cast-in-place concrete floor and walls, with high windows on the north side and fully opening, folding glass doors on the south side. The wood-framed second floor features a sloped ceiling, creating a large, open space with expansive shelving on either side of the fireplace. This area incorporates a writing desk with a window view and an open kitchen. The roof has significant cantilevered overhangs on the east and west sides over the deep deck, which wrap three sides of the living level.
STRUCTURAL ENGINEER
Martos Engineering PLLC
________________________
CIVIL ENGINEER
Hudson Land Design PC