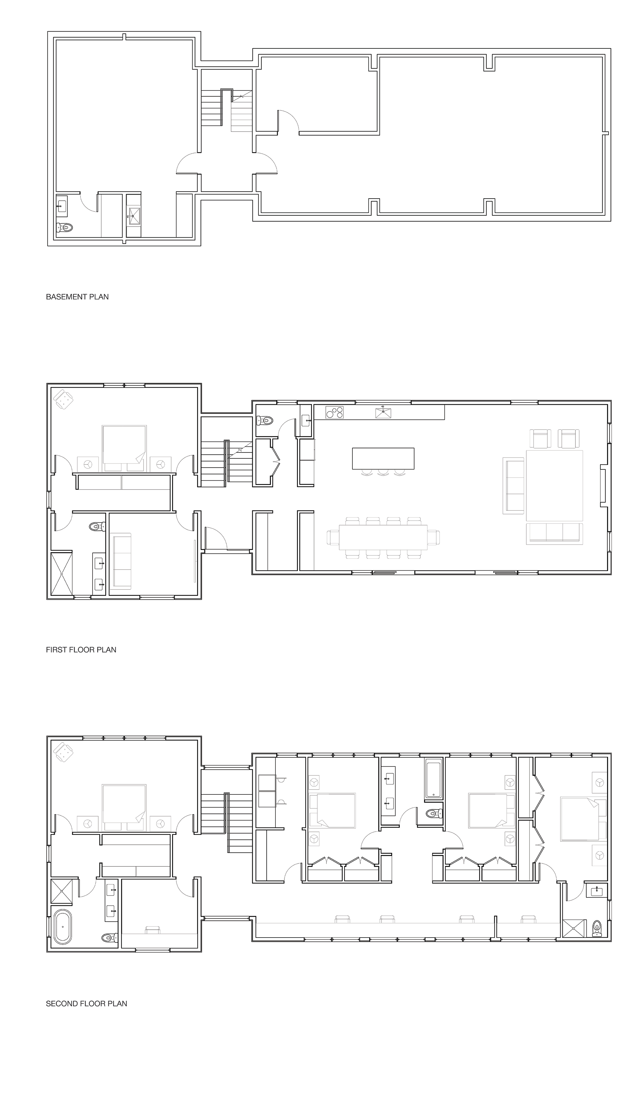
A house for an extended family in Beacon, New York, composed of two volumes separated by the circulation, allowing a distinction between private and shared spaces. One volume houses the more private primary suites, while the other houses the children's bedrooms, which open onto a shared library and work space. The second volume also houses the open kitchen and living space. The windows are oriented to maximize natural light and views to the surrounding mountains and river.
